Nørrelund & Co.

Vores projekter. Fra vision til virkelighed

Hos Nørrelund & Co. arbejder vi med projekter, der rummer mere end det, øjet umiddelbart ser. Vi udvælger nøje de ejendomme og grunde, som har en særlig karakter eller et skjult potentiale – og forvandler dem til boliger eller investeringer med æstetik, funktionalitet og økonomisk værdi.

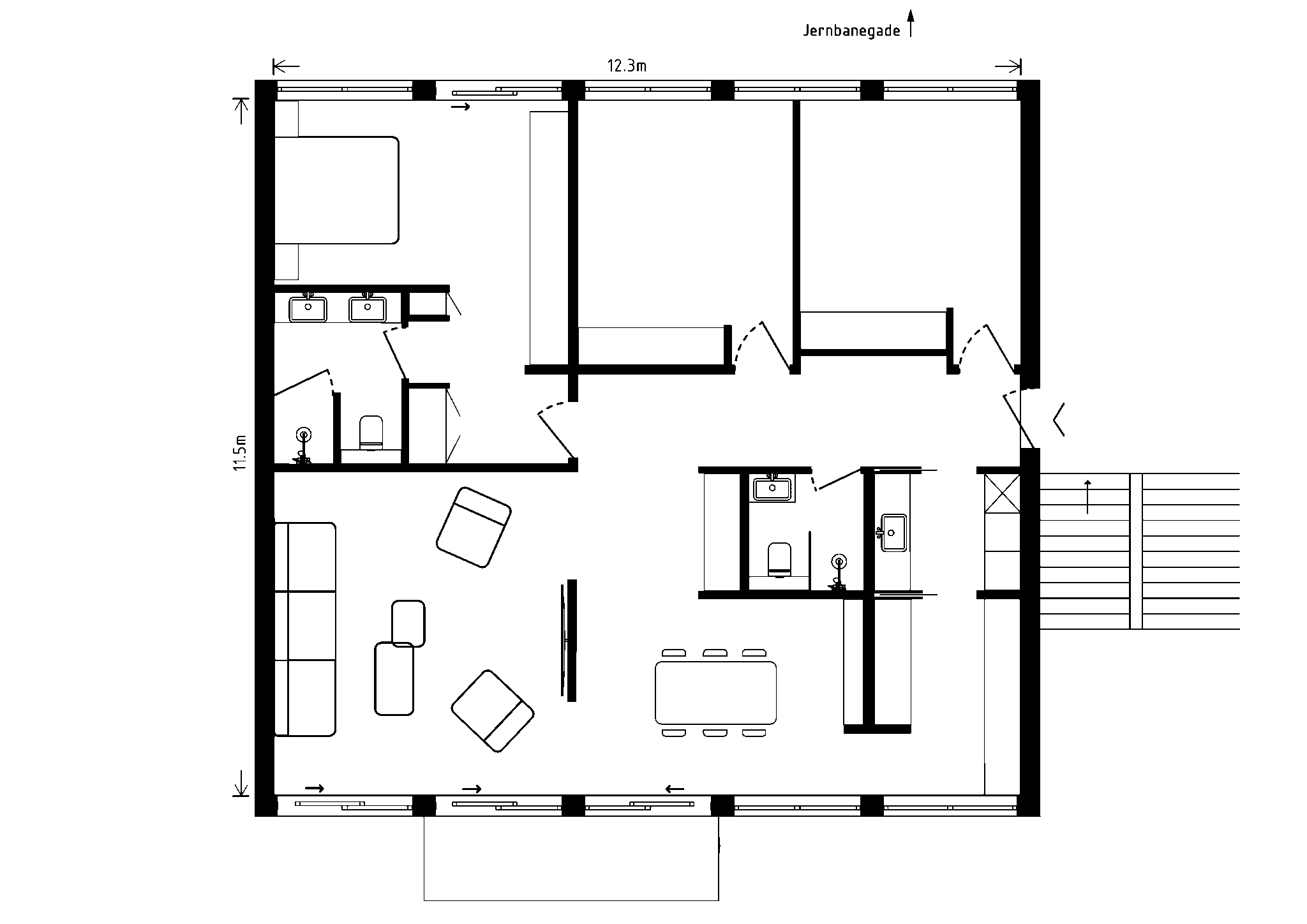
Ombygning af tidligere erhvervslokale til bolig

Rummene er forbundet med omtanke – med naturlig kontakt, men også mulighed for at trække sig tilbage. Det giver ikke bare funktionalitet, men også plads til fordybelse og mental ro.

Boligen er orienteret med blik for både solens gang, hovedindgang, baggård og den daglige logistik – for det gør hverdagen nemmere.

Allerede i entréen mærker man den gennemtænkte indretning: Her er der plads til overtøj og hverdagsliv. De nærliggende værelser er skærmet af med korte vægge, der samtidig skaber plads til skabsløsninger. Det dæmper lyd og giver privatliv – selv når døren står på klem.

Centralt ligger badeværelset, som er tæt på både værelser og bryggers – en praktisk placering, når man fx skal af med vasketøj efter badet. Bryggerset er placeret direkte ved hoveddøren og hænger naturligt sammen med køkkenet. Det gør det let at sætte indkøb fra sig og udnytte den tekniske infrastruktur, som allerede er etableret i ejendommen.

Køkkenet åbner sig op mod stuen, men med lydzoner og bevidste overgangsrum. Her kan du lave mad, mens der læses lektier ved spisebordet – uden at støj forstyrrer. Mellem spisestue og dagligstue sørger en afskærmende væg for god akustik og en oplagt placering til TV, hvor både genskin og lyd er tænkt væk fra resten af boligen.

Hele facaden mod vest er badet i lys. Store vinduer i køkken og spisestue skaber åbenhed og varme, og skydedørene i stuen fører ud til en kommende altan – perfekt placeret til at nyde aftensolen det meste af året.

I det rolige nordøstlige hjørne ligger soveværelset – med fransk altan, eget badeværelse og en diskret skabsgang. Den adskiller funktionerne og giver et naturligt flow og en buffer mod støj. I en tid med fleksible arbejdstider og forskudte døgnrytmer er det netop sådan et soveværelse, der gør forskellen på god søvn og et roligt sind.

Alt i alt er boligen skabt med fokus på livskvalitet – på det gode samliv, hvor mennesker kan leve sammen og stadig have plads til sig selv. For i en travl hverdag er det netop den balance, der skaber overskud.

Villa på tæt bevokset grund

Placeret i et stille favntag med naturen står denne villa som et hjem, der mærker de mennesker, der bor i det. Et sted, hvor hverdagen får lov at flyde, og hvor alle – både store og små – kan trække sig tilbage til deres eget rum eller mødes i et fælles nærvær, alt efter hvad dagen kalder på.

Allerede ved ankomsten oplever man en ro. Entréen ligger centralt som en naturlig fordeling mellem husets afdelinger – børneværelserne, køkkenet, stuerne og det mere private arbejdsværelse. Alt er åbent, men stadig tydeligt afgrænset, så man intuitivt føler sig velkommen og forbundet. Udenfor skaber den overdækkede indgang en stille overgang mellem ude og inde, uanset vejret.

I alle værelser og kontoret er der arbejdet med en lille buffer-væg ved indgangen – en diskret “lydsluse”, der giver et blødere lydbillede og en følelse af at træde ind i sit eget rum. Et lille, men vigtigt greb, der er tænkt med omsorg.

Køkkenet er skabt som et arbejdsrum, hvor ro og funktionalitet kan få lov at dominere, men uden at lukke verden ude. Det er åbent mod både den lille, uformelle spiseplads – perfekt til en hurtig morgenmad – og mod spisestuen, så samtalerne kan fortsætte på tværs af rummene, mens hverdagen udfolder sig.

Bryggerset ligger præcis dér, hvor hverdagen kræver det: tæt på entré, køkken og carport. En praktisk akse, der aflaster dagen uden at stjæle opmærksomheden.

I den modsatte ende af villaen ligger en stille, privat afdeling: soveværelse, walk-in og badeværelse – skabt som et lille helle. Her kan man trække vejret lidt dybere. Og udenfor venter et udendørsbad, hvor tankerne kan falde til ro i den friske luft.

Carporten giver direkte adgang til bryggerset, og den overdækkede passage mod hoveddøren binder det hele sammen. Et ventileret, overdækket tørrerum er integreret som en naturlig del af dagligdagens rytmer.

Rundt om villaen ligger små, afskærmede oaser, hvor man kan sætte sig – alene eller sammen – og mærke dagens skiftende lys og stemninger. Hver af dem skabt med intentionen om at give frihed, luft, rum og valg.

Hele villaen er tænkt som et hjem for den større familie, der ønsker fleksibilitet i hverdagen: mulighed for at være sammen, mulighed for at være hver for sig, og frem for alt mulighed for at vælge det, der tjener livet bedst. Et hjem der tilpasser sig mennesker – ikke omvendt.

50 90 02 34 Send mail